Sanierung, Teilneubau FFW Zweenfurth
Ersatzneubau Feuerwehrgerätehaus, FFW Zweenfurth
Beschreibung:
Planung, Gewerke HS + E
Zeitraum:
2020
Projektbeschreibung:
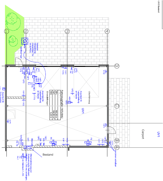
Bei dem Vorhaben handelte es sich um einen geplanten Abriss der bestehenden Fahrzeughalle der FFW Zweenfurth, Hirschfelder Str. 3, 04451 Borsdorf, OT Zweenfurth (Anbau an Feuerwehrhaus) sowie den geplanten Ersatzneubau einer Fahrzeughalle zur Unterstellung von 2 Fahrzeugen einschließlich Zubehör (z. B. Ladestation). Die Fahrzeughalle sollte einseitig an das bestehende Feuerwehrhaus angebaut werden, die Toreinfahrt wurde um 90° gedreht.
Die Fahrzeughalle sollte den neuesten Anforderungen der Feuerwehrverordnung entsprechen.
Das Gebäude war für eine Versorgung durch ein mobiles Notstromaggregat vorzurüsten. Bei Ausfall der Stromversorgung sollen Fahrzeughalle und weitere Teile des Kopfbaues mit Notstrom versorgt werden können.
Die Leitung der FFW hatte einige Sonderwünsche aufgrund ihrer Stellung als Veranstalter für z. B. Dorffeste in Zweenfurth, die zu berücksichtigen waren.
Bauherr:
Gemeinde Borsdorf, Rathausstr. 1, Borsdorf
Leistungen:
TGA-Planung Gewerke HS + ELT, Leistungsphasen 2 – 7
Zeitraum:
Planungsbeginn 03/2019 – Fertigstellung 08/2020
Baukosten
Elt netto: ca. 41.000 €
