Neubau, Niu Hide Hotel (Sky-Park-Hotelkonzept), Berlin (152 Zimmer)
Sky Park Berlin, Neubau Niu Hide Hotel, Berlin
Beschreibung:
Ausführungsplanung Gewerk Trinkwasser, Erstellung
Revisionsplanung Gewerke HLSE
Zeitraum:
2018
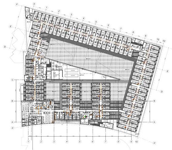
Projektbeschreibung:
Errichtung eines Lifestyle-Hotels in Modulbauweise auf dem Parkdeck eines Einkaufszentrums (Ring-Center II in Berlin). Alle Zimmer befinden sich auf einer Etage, die ringförmig auf dem Parkdeck angeordnet werden. Das Hotel verfügt über 152 Hotelzimmermodule.
Das „Skypark-Hotelkonzept“ folgt einer zukunftsorientierten Stadtentwicklung in Zeiten der urbanen Nachverdichtung. Eine aktuell ungenutzte Parkfläche wurde somit revitalisiert.
Bauherr:
Skypark GmbH & Co KG, Schönhauser Allee 44a, 10435 Berlin
Aufgabenstellung:
Die GEC GmbH wurde mit der Ausführungsplanung (LPh 5) Gewerk Trinkwasser sowie der Erstellung
der Revisionspläne für die Gewerke HLSK + Elt beauftragt.
Auftraggeber für GEC GmbH:
Büro für Haus- und Energietechnik Torsten Duba, Stadtroda
Zeitraum:
01/2019 – 02/2019
